Retour aux biens

Bureau, Meyrin, Genève

Surface très lumineuse - 305m2 bureaux

Réf L50310

305 m²

Loyer net : CHF 6'354.-
Charges : CHF 375.-

Bureaux lumineux de 305 m² à louer – Meyrin Village, à proximité immédiate du CERN

Situés au cœur du village convivial de Meyrin, à deux pas du CERN, ces bureaux bénéficient d’un emplacement stratégique, parfaitement desservi par les transports publics. Le tram (ligne18) ainsi que les bus 57 et 68 se trouvent à quelques mètres seulement. Le parking de Meyrin Village est accessible à 50 mètres.

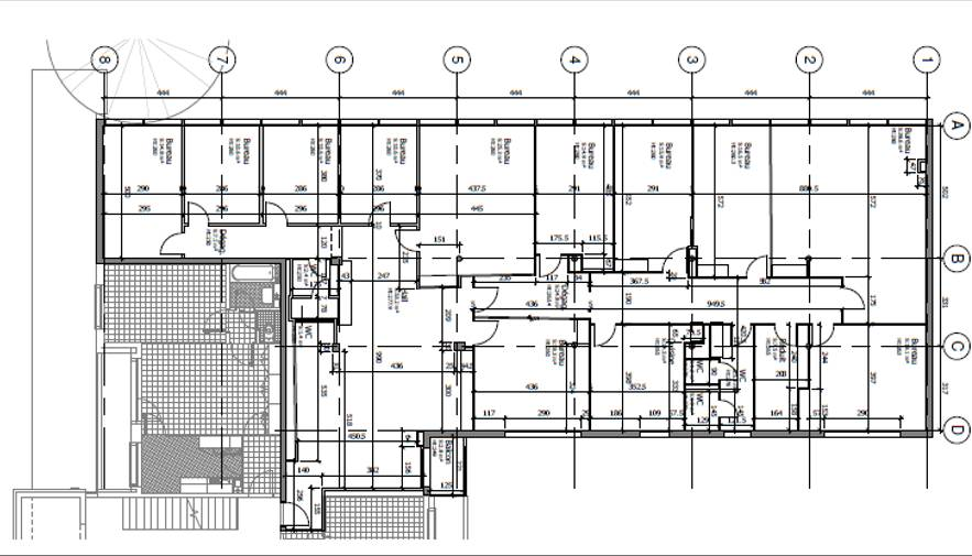
Implantés au 1er étage, ces bureaux d’environ 305 m² offrent une excellente luminosité et de beaux volumes, avec une grande flexibilité d’aménagement. En l’état, la surface se compose de :

Une entrée sur un open space
9 bureaux individuels
2 grands bureaux
2 blocs sanitaires
1 espace cuisine
1 espace archives et informatique

Le câblage informatique est présent en périphérie.
Des travaux de rafraîchissement sont prévus à la charge du bailleur

L’immeuble bénéficie d’un environnement très dynamique avec de nombreux commerces et restaurants à proximité immédiate, dont une Coop au rez-de-chaussée.

À noter : pas d’accès pour les personnes à mobilité réduite.

N’hésitez pas à nous contacter pour organiser une visite ou obtenir de plus amples informations.

Caractéristiques du bien

Type :

Bureau

Loyer net :

CHF 6'354.-

Charges : CHF 375.-

Etage(s) :

1

Surface habitable :

305 m²

Surface utile :

305 m²

Disponibilité :

Sur demande

Emplacement du bien

AUTRES BIENS AUX ALENTOURS