Retour aux biens

Atelier, Plan-les-Ouates, Genève

Locaux en zone FTI d'env 720m2 à Plan-les-Ouates

Réf L50627

720 m²

Loyer net : Prix sur demande
Charges :

Ce complexe d’immeubles est situé dans la zone industrielle (FTI)  de Plan-les-Ouates, à proximité des axes routiers, de la douane de Saint-Julien et de l’entrée de l’autoroute. Arrêts des lignes TPG: 22, 24 et D.

Plus de 40 entreprises sont implantées dans ce complexe. Ce site accueille également des chambres d’hôtes, 2 restaurants, une salle de sport et un service de conciergerie. Il dispose d’un cadre très agréable. Dans cette zone et à proximité du site  on trouve des sociétés de renoms telles que : Clarins, Vacheron Constantin, Rolex….

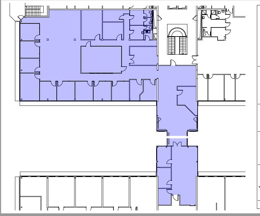
Les locaux de 720 m2 se trouvent au Bâtiment 12 au 2ème étage. Ils se composent d'un grand open spaces et plusieurs bureaux fermés, sanitaires et coin cuisine. Ils sont exploités pour une activité administrative. La société doit être éligible avec la zone FTI.
Les locaux disposent de systèmes de ventilation et d’extraction d’air, de climatisation ainsi que des raccordement électriques.

Une cage d’escalier centrale ainsi que 2 ascenseurs, un monte charge relient les niveaux. Possibilité de privatiser l’entrée du bâtiment pour installer un desk.

Places de parking disponibles, ratio 1 place / 40 m2

Adresse : chemin des Aulx, CH-1218 Plan-les-Ouates

Caractéristiques du bien

Type :

Atelier

Etage(s) :

2

Place(s) de parc :

Oui

Surface habitable :

720 m²

Surface utile :

720 m²

Disponibilité :

De suite

Emplacement du bien

AUTRES BIENS AUX ALENTOURS