Retour aux biens

Bureau, Meyrin, Genève

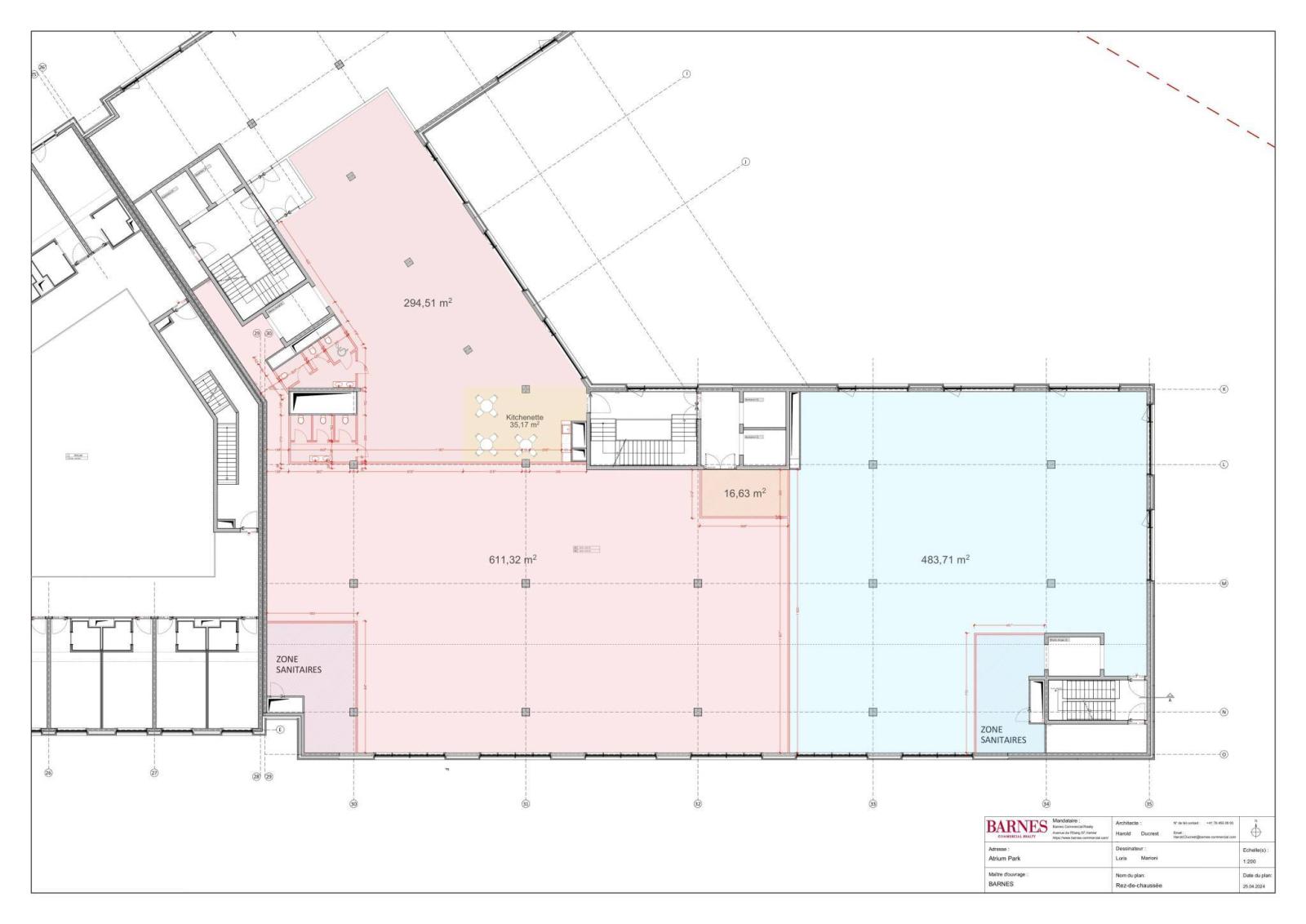
Magnifique surface de 500 m2 au 2ème étage d'un bâtiment moderne

Réf L50902

500 m²

Loyer net : CHF 15'625.-
Charges : N.C

Nous sommes enchantés de vous présenter cette exceptionnelle opportunité de location d'un bureau de 500m2 au cœur de la dynamique zone industrielle de Meyrin. Niché au 2ème étage d'un bâtiment moderne, ce lieu offre un environnement professionnel optimal pour votre entreprise.
Caractéristiques principales :- Superficie : 500m2
- Étage : 2ème étage
- Entrées : 3 entrées individuelles
- Équipements : Monte-charge disponible
- Aménagement : Surface brute avec participation du propriétaire à l'aménagement inclus

En sus de ces caractéristiques attrayantes, cet espace de bureau propose également des avantages supplémentaires, incluant :- Places de Parking : 15 places disponibles au sous-sol, à louer en supplément
- Localisation Stratégique : Idéalement situé dans la zone industrielle de Meyrin, cet emplacement bénéficie d'une excellente accessibilité par les transports en commun, notamment grâce à la proximité de la gare ZIMEYSA, à seulement 2 minutes à pied. De plus, l'autoroute, l'aéroport et la frontière française sont facilement accessibles depuis ce lieu privilégié.

Ce bureau spacieux et moderne offre un cadre idéal pour répondre à vos exigences professionnelles.
Pour de plus amples informations ou pour organiser une visite, veuillez nous contacter dès aujourd'hui. Ne laissez pas passer cette opportunité unique de louer un espace de bureau de première qualité dans l'une des zones les plus prisées de Meyrin.

Caractéristiques du bien

Type :

Bureau

Loyer net :

CHF 15'625.-

Charges : N.C

Etage(s) :

2

Place(s) de parc :

Oui

Surface habitable :

500 m²

Surface utile :

500 m²

Disponibilité :

Sur demande

Emplacement du bien

AUTRES BIENS AUX ALENTOURS