Retour aux biens

Bureau, Meyrin, Genève

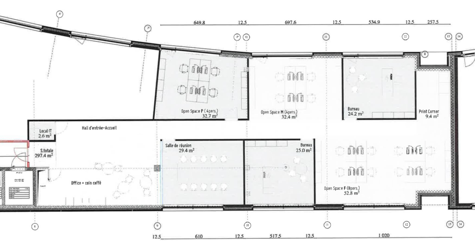
Bureau Plug & Play de 337 m² – Atrium Park, Meyrin

Réf L52185

337

Loyer net : CHF 9'548.-
Charges : N.C

Située au 2ᵉ étage du bâtiment Atrium Park, cette surface de 337 m² offre un environnement de travail moderne et fonctionnel, prêt à l’emploi (Plug & Play).

Idéale pour une entreprise recherchant un espace immédiatement opérationnel, combinant bureaux fermés et open space.

Caractéristiques de la surface :
- Surface aménagée et Plug & Play
- Bureaux séparés & open space pour une flexibilité optimale
- Coin cuisine pour le confort des collaborateurs
- Lumineux et bien agencé

Atouts supplémentaires :
- Adresse stratégique : Rue de la Bergère 3C, 1217 Meyrin, au cœur d’Atrium Park
- 4 à 5 places de parking en sous-sol disponibles en sus
- Excellente accessibilité aux transports et axes routiers

Disponible de suite

Intéressé ? Contactez-nous pour plus d’informations ou pour organiser une visite !

Caractéristiques du bien

Type :

Bureau

Loyer net :

CHF 9'548.-

Charges : N.C

Etage(s) :

2

Surface habitable :

337 m²

Disponibilité :

Sur demande

Emplacement du bien

AUTRES BIENS AUX ALENTOURS