Retour aux biens

Bureau, Vernier, Genève

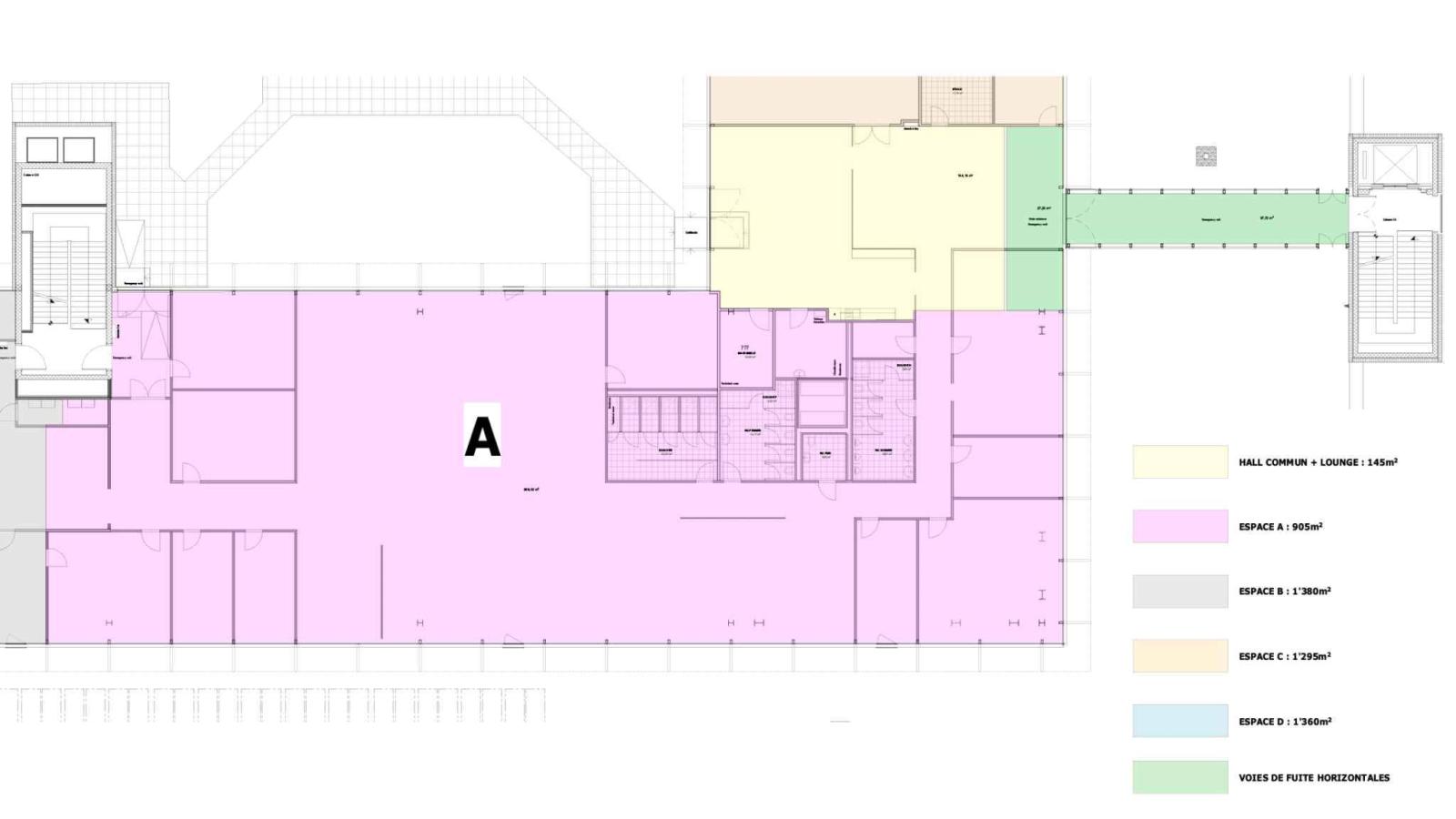
Vernier - Surface de 903 m2 en attique - Immeuble IKEA

Réf L67781

903

Loyer net : CHF 21'070.-
Charges : N.C

En attique du bâtiment d'IKEA, situé route de pré-Bois, construit en 2010, une belle surface de 903m2 , offre une vue panoramique.

La zone de Vernier est un secteur qui combine parfaitement accessibilité, dynamisme et commerces. L'emplacement est un choix stratégique pour les entreprises cherchant à s'implanter dans un environnement bien desservi et en plein développement.

Situé au dernier étage, ce plateau bénéficie d’une luminosité optimale grâce à ses nombreuses ouvertures. Les locaux donnent aussi plusieurs accès à une terrasse entièrement aménagée qui sera végétalisée.

Caractéristiques :
- Emplacement stratégique à proximité des axes de transport et de l'aéroport
- Accessibilité aisée en transports en commun et en voiture, grand parking public pour votre clientèle disponible
- Livraison rénovée, aménagée et meublée

Avantages :

- Bureaux prêts à l'emploi avec mobilier Ikea pour des durées flexibles
- Durée du bail de courte durée (2 ou 3 ans maximum)
- Luminosité optimale
- Entrée par le jardin.


Accessibilité:

- Accès immédiats aux Autoroutes
- Transport Public lignes de bus 23, 28,53,57 et trams 14,15, 17, 18
- L’accès à l’aéroport de Genève, qui est situé à seulement 5 minutes en voiture, renforce encore l’attractivité de ce secteur pour les entreprises internationales.




Caractéristiques du bien

Type :

Bureau

Loyer net :

CHF 21'070.-

Charges : N.C

Etage(s) :

Attique

Surface habitable :

903 m²

Disponibilité :

De suite

Emplacement du bien

AUTRES BIENS AUX ALENTOURS