Retour aux biens

Bureau, Vernier, Genève

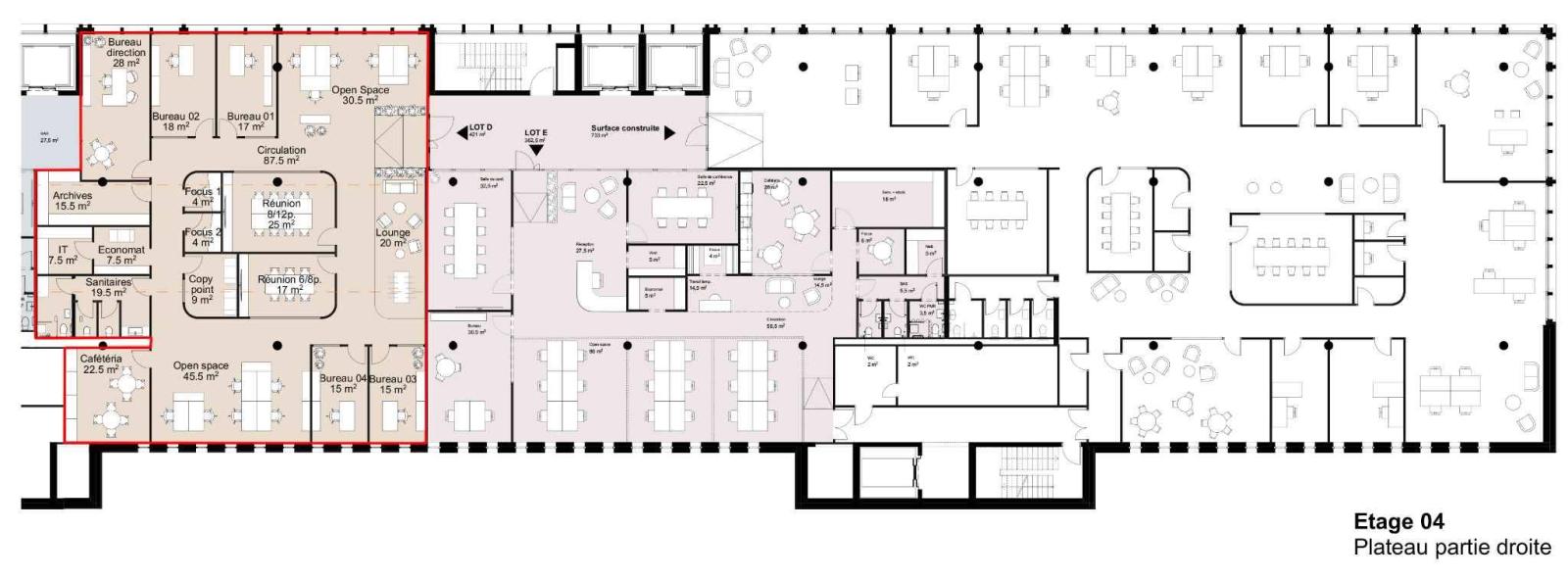
À louer – Bureaux bruts à aménager au Quartier de l’Étang

Réf L67839

421

Loyer net : CHF 12'279.-
Charges : N.C

Découvrez ces bureaux bruts situés au 4ᵉ étage d’un bâtiment moderne et fonctionnel, au cœur du Quartier de l’Étang à Genève.

Idéal pour les entreprises à la recherche d’un espace modulable et évolutif, ce bien offre la possibilité d’un aménagement sur mesure, réalisé par le propriétaire moyennant un surloyer attractif.

Points forts :

- Bureaux bruts à aménager selon vos besoins
- Possibilité d’aménagement clé en main (avec surloyer)
- Bâtiment moderne, lumineux et confortable
- Prestations de qualité et espaces communs soignés
- Environnement résidentiel et commercial attractif
- Excellente accessibilité : transports publics et axes routiers à proximité
- Quartier dynamique offrant commerces, restaurants et services

Ces bureaux représentent une opportunité unique d’implanter votre activité dans un secteur en plein essor, combinant modernité, flexibilité et qualité de vie au travail.

Contactez-nous dès aujourd’hui pour plus d’informations ou pour organiser une visite.

Caractéristiques du bien

Type :

Bureau

Loyer net :

CHF 12'279.-

Charges : N.C

Etage(s) :

4

Surface habitable :

421 m²

Disponibilité :

Sur demande

Emplacement du bien

AUTRES BIENS AUX ALENTOURS