Retour aux biens

Bureau, Vernier, Genève

Bureaux d’exception de 904m² au cœur du Quartier de l’Étang

Réf L68482

904

Loyer net : CHF 25'613.-
Charges : N.C

Situé au cœur du Quartier de l’Étang, pôle économique dynamique et durable, Le Belvédère s’impose comme le bâtiment le plus prestigieux du site. Il accueille notamment le siège de la banque Rothschild, confirmant son positionnement institutionnel et premium.

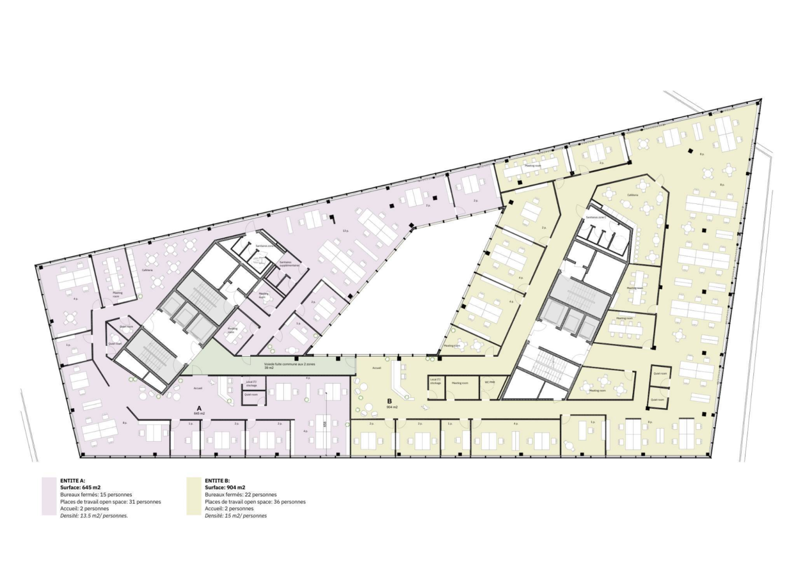
Nous proposons à la location une surface de bureaux d’environ 1’600 m², entièrement divisible, offrant une grande flexibilité d’implantation et des prestations de haut standing.

Surfaces disponibles :
- Surface A : 645 m²
- Surface B : 904 m²

Les surfaces peuvent être louées individuellement ou regroupées, selon les besoins de l’utilisateur.

Prestations :
- Surfaces livrées brutes, offrant une totale liberté d’aménagement
- Possibilité de livraison Plug & Play (clé en main) avec bureaux cloisonnés, salles de réunion et espaces collaboratifs
- Grandes surfaces vitrées garantissant une luminosité optimale
- Plateaux efficients, adaptés aux environnements open space
- Bâtiment de standing institutionnel, image et adresse valorisantes
- Quartier labelisé SNBS
- Nombreuses places de parking en sous-sol (public et privé)

Un environnement professionnel privilégié
- Quartier moderne, durable et parfaitement connecté
- Services, commerces et restauration à proximité immédiate
- Excellente accessibilité en transports publics et axes routiers

Caractéristiques du bien

Type :

Bureau

Loyer net :

CHF 25'613.-

Charges : N.C

Etage(s) :

6

Surface habitable :

904 m²

Disponibilité :

Sur demande

Emplacement du bien

AUTRES BIENS AUX ALENTOURS