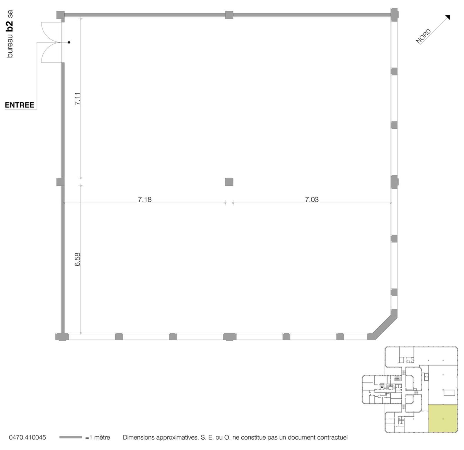
Situés au 1er étage d’un immeuble industriel au Chemin du Grand-Puits 40 à Meyrin, ces locaux d’environ 205 m² offrent un cadre fonctionnel et lumineux, idéal pour une activité artisanale, administrative ou de stockage léger.
La surface, facilement modulable, bénéficie d’une belle hauteur sous plafond et d’une luminosité naturelle agréable, permettant un aménagement flexible selon vos besoins. L’accès au monte-charge de l’immeuble facilite la logistique et le transport de matériel.
Des sanitaires communs sont à disposition sur le palier.
Idéalement située dans une zone industrielle dynamique de Meyrin, l’adresse profite d’une proximité immédiate des axes routiers, transports publics et commodités, offrant un environnement pratique pour vos collaborateurs et partenaires.
Caractéristiques principales :
- Surface d’environ 205 m²
- 1er étage d’un immeuble industriel
- Surface lumineuse et modulable
- Belle hauteur sous plafond
- Accès au monte-charge
- Sanitaires communs sur le palier
Parkings extérieurs disponibles en sus : CHF 120.–/mois/place
Disponibilité : dès le 1er mars 2026