Retour aux biens

Bureau, Genève

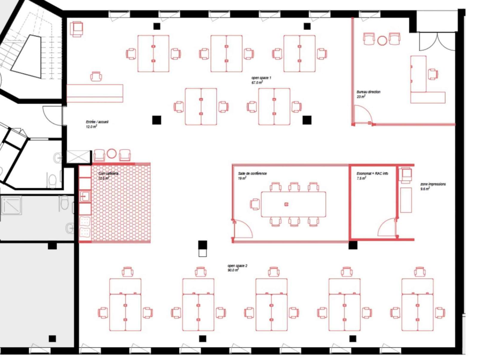
Bureaux proches HUG - Aménageables au gré du preneur

Réf L68604

280 m²

Loyer net : CHF 9'100.-
Charges : CHF 817.-

Idéalement situés à la Rue des Battoirs 7 à Genève, ces bureaux d’une surface d’environ 280 m² offrent un environnement de travail agréable et fonctionnel, à proximité immédiate des commodités et des transports publics.

La surface offre une vue dégagée et le bâtiment dispose de deux grands ascenseurs, accès PMR facilité.

Il s’agit ainsi d’une opportunité idéale pour une entreprise souhaitant personnaliser ses espaces de travail dans un immeuble bien situé sur la rive gauche de Genève.

La surface bénéficie d'un faux plancher technique, et les toilettes sont sur le palier.

Les lignes de bus et tram sont nombreuses dans les alentours (lignes de bus 12,17,18,91 à 160m)
Gare Cornavin à 15min en voiture
HUG à 700m

Nous nous tenons à disposition pour tout complément d’information ou pour organiser une visite.
Les photos de l'annonce ne sont pas contractuelles, les travaux sont à définir avec le bailleur.

Caractéristiques du bien

Type :

Bureau

Loyer net :

CHF 9'100.-

Charges : CHF 817.-

Etage(s) :

7

Surface habitable :

280 m²

Surface utile :

280 m²

Disponibilité :

Sur demande

Emplacement du bien

AUTRES BIENS AUX ALENTOURS